The Watchmakers Cottage
Renovating Two Cottages into One Spacious Home
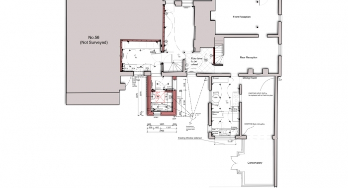
Project Overview
The Watchmakers Cottage in Wingham is one of three charming cottages situated on the High Street within the Wingham conservation area. The original structure is a Grade II Listed Medieval timber-framed Hall House, designed on a ‘three-cell plan’ and recognised as one of the Historic Buildings of Kent. Over time, the Hall House was poorly subdivided into three cottages, with the middle cottage suffering from a lack of maintenance for over 30 years.
Design and Planning
We successfully secured full planning and listed building consent to reconfigure two of the cottages into a single, spacious home, including a new rear extension with a shower room. During the renovation, a number of issues were found with the existing building created by poor maintenance and care by a previous owner.
Outcome
A full schedule of works was produced to rectify all the issues discovered using best practice to preserve the historic asset and insure its longevity to be enjoyed for many years to come.
Like What You See?
If you’re inspired by our work, contact us to discuss how we can bring your vision to life.

©2021 Urban&Rural Ltd. | design