Biggs Opticians – Canterbury, Deal, and Dover
Updating Biggs Opticians across Kent
Biggs Opticians, Deal
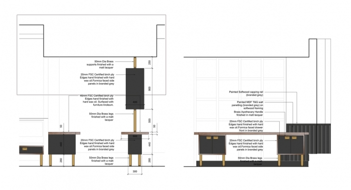
We were appointed to provide a fully detailed interior design and RIBA service for Biggs Opticians, a long-established family-run opticians in Deal. Our responsibilities included defining the project brief, managing the design process, and overseeing the implementation to ensure the timely reopening of their commercial operations. We also acted as the Principal Designer, fulfilling legal duties under the 2015 CDM Health and Safety Act. The project included re-ordering the clinical treatment rooms, featuring OCT stands for Ocular Coherence Tomography, a sophisticated diagnostic tool for examining eye health. We managed the project from initial client workshops to the concept design and the production of a full detailed tender pack, including 3D renders and technical details for specialist cabinet makers.
Biggs Opticians, Canterbury
Following the successful fit-out of the Deal premises, we were appointed to manage the opening of the new Canterbury branch. It was a full shop fit-out project located in a Grade II listed building. This project involved research and production of a heritage statement to secure legal consent for forming a new clinical treatment room within the building.
Chain Update: Canterbury, Deal, and Dover
After successfully completing the Deal project and working to update the chain of opticians across Canterbury, Deal, and also Dover, the comprehensive update ensured that each location met the highest standards of design, functionality, and patient care. Our expertise in managing heritage sites, detailed interior design, and advanced clinical facilities contributed to the consistent quality and modern functionality of these optician branches.
Like What You See?
If you’re impressed with our successful renovation of Biggs Opticians in Kent, contact us today to discover how we can assist with your major project.

©2021 Urban&Rural Ltd. | design