Volks Farmers
Transforming Agricultural Heritage into a Modern Business Hub
Project Overview
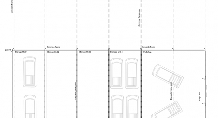
We collaborated with Volks Farmers, a specialist Classic VW restoration facility, to convert a redundant agricultural building into a state-of-the-art rural business. Located on the family’s farm, this business has seen substantial growth and now has a six-month waiting list for their specialist services.
Design and Planning
We developed a comprehensive needs case to justify the development in this rural location. This included extensive research and the preparation of a historic statement of significance, as the farmhouse is a Grade II Listed Medieval Hall House. The design respects the historical and architectural integrity of the property while providing modern functionality.
Outcome
The project successfully secured full planning consent from Shepway District Council, enabling Volks Farmers to expand their operations and continue delivering top-tier restoration services.
Like What You See?
If you’re inspired by our transformation of Volks Farmers from agricultural heritage into a modern business hub, reach out to us today.

©2021 Urban&Rural Ltd. | design